賃貸
ニーズビル 1・2階 メゾネット
1・2階メゾネット 大橋駅まで徒歩4分の好立地! 視野性が良く人通りの多い路面店♪
適用業種
物件情報
| 物件番号 | 252209003 | 物件種目 | 貸店舗・事務所(一部) |
|---|---|---|---|
| 賃料 | 月額 91.19万円 税込 | 保証金 | - |
| 礼金 | - | 償却 | - |
| 建物構造 / 建物階数 | 鉄骨鉄筋コンクリート造(SRC造)/ 地上7階 地下 -階 |
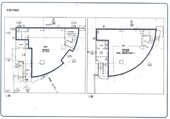
使用階 / 部屋番号 | 1階~2階 |
| 面積 | 215.31㎡ | 坪数 | 65.13坪 |
| 築年年月 | 1991年 7月 | 駐車場 | 無 |
| 契約形態 | 普通借家 | 契約期間 | 2年 |
| 現況 | 空 | 引渡し | 即 |
| 更新料 | 新賃料の1.1ヶ月分 | 造作譲渡料 | - |
| 特徴 | スケルトン | ||
| 備考 | ガス、給湯設備無。設備設置応相談 短期解約違約金あり。 保険指定有り。 |
|---|
アクセス
西鉄天神大牟田線 / 大橋駅
店舗物件所在地
福岡県福岡市南区大橋1-4-5
交通期間
最寄り駅
西鉄天神大牟田線 大橋駅 徒歩4分


