賃貸
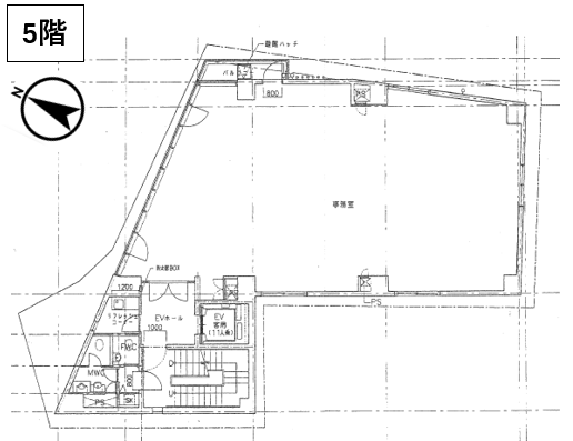
FDI逗子駅前ビル 5階
JR横須賀線「逗子」駅より徒歩1分! 事務所仕様の内装あり!
適用業種
物件情報
| 物件番号 | 250009014 | 物件種目 | 貸店舗・事務所(一部) |
|---|---|---|---|
| 賃料 | 月額 60.5万円 税込 | 保証金 | 330万円 |
| 礼金 | 1.1ヶ月 | 償却 | 解約時賃料の2.2ヶ月 |
| 建物構造 / 建物階数 | 鉄筋コンクリート造(RC造)/ 地上5階 地下 -階 |
使用階 / 部屋番号 | 5階 |
| 面積 | 152.52㎡ | 坪数 | 46.13坪 |
| 築年年月 | 2004年 5月 | 駐車場 | 無 |
| 契約形態 | 普通借家 | 契約期間 | 3年 |
| 現況 | 空 | 引渡し | 相談 |
| 更新料 | 新賃料の1.1ヶ月 | 造作譲渡料 | - |
| 特徴 | 看板設置可 | ||
| 備考 | 店舗総合保険(借家人賠償特約付)加入要 家賃債務保証をご利用いただく場合があります 看板設置、相談できます |
|---|
アクセス
JR横須賀線 / 逗子駅
店舗物件所在地
神奈川県逗子市逗子2-6-34
交通期間
最寄り駅
JR横須賀線 逗子駅 徒歩1分


