賃貸
N omachi(エン オオマチ) 2階
繁華街近く おしゃれなビル2階 美容系・飲食可物件
適用業種
物件情報
| 物件番号 | 252810001 | 物件種目 | 貸店舗(一部) |
|---|---|---|---|
| 賃料 | 月額 40万円 税込 | 保証金 | - |
| 礼金 | 1ヶ月 | 償却 | 無し |
| 建物構造 / 建物階数 | 鉄筋コンクリート造(RC造)/ 地上4階 地下1階 |
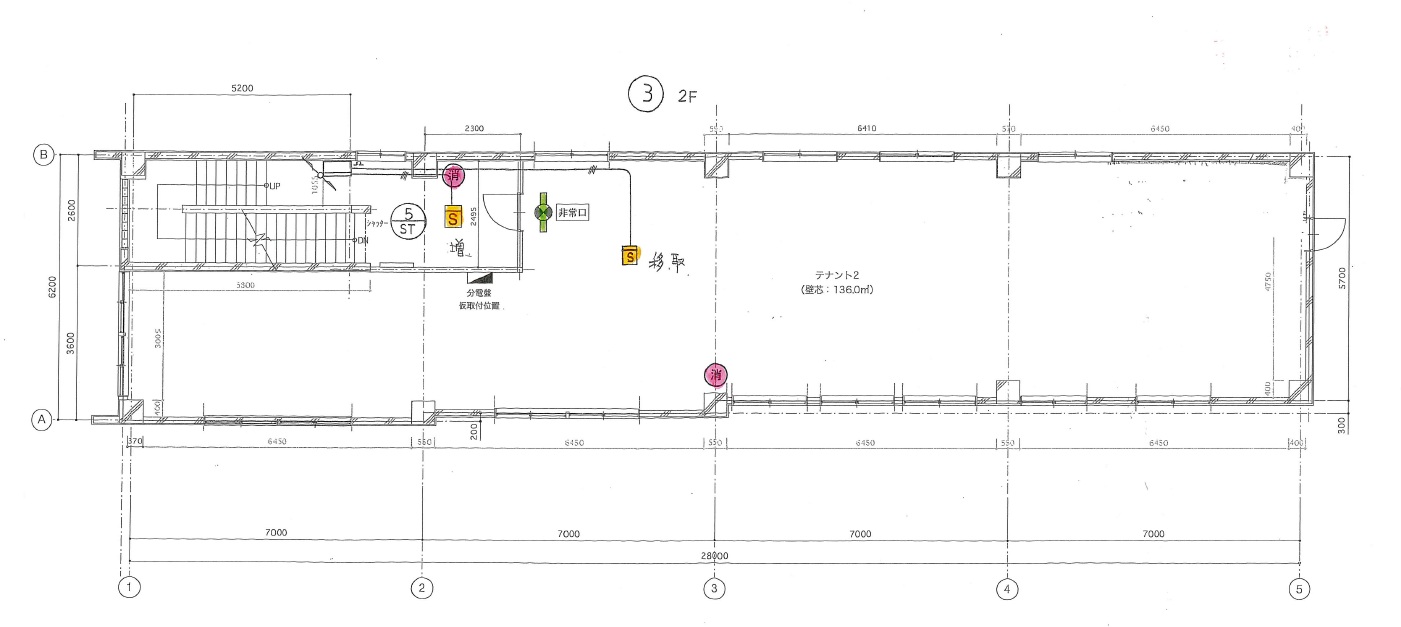
使用階 / 部屋番号 | 2階 |
| 面積 | 136.00㎡ | 坪数 | 41.14坪 |
| 築年年月 | 1967年 4月 | 駐車場 | 無 |
| 契約形態 | 普通借家 | 契約期間 | 2年 |
| 現況 | 空 | 引渡し | 相談 |
| 更新料 | 新賃料の1カ月 | 造作譲渡料 | - |
| 特徴 | 24時間利用可/スケルトン | ||
| 備考 | リフォーム済み物件/深夜営業可 消防への届出および保険等入居者負担 現状スケルトン 天井高2500mm以上 |
|---|
アクセス
仙台市営地下鉄東西線 / 大町西公園駅
店舗物件所在地
宮城県仙台市青葉区大町2-6-3
交通期間
最寄り駅
仙台市営地下鉄東西線 大町西公園駅 徒歩5分


