賃貸
イトーピア参鐘館1階物件
阪急逆瀬川駅前デッキ直結商業地区の1階路面店!何業もご相談ください!!
適用業種
物件情報
| 物件番号 | 255010002 | 物件種目 | 貸店舗・事務所(一部) |
|---|---|---|---|
| 賃料 | 月額 28.6万円 税込 | 保証金 | - |
| 礼金 | 79.6万円 | 償却 | - |
| 建物構造 / 建物階数 | 鉄骨鉄筋コンクリート造(SRC造)/ 地上14階 地下 -階 |
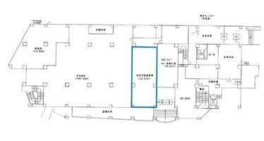
使用階 / 部屋番号 | 1階 |
| 面積 | 126.07㎡ | 坪数 | 38.13坪 |
| 築年年月 | 1983年 12月 | 駐車場 | 有 |
| 契約形態 | 普通借家 | 契約期間 | 2年 |
| 現況 | 空 | 引渡し | 2026年1月予定 |
| 更新料 | なし | 造作譲渡料 | - |
| 特徴 | |||
| 備考 | *重飲食はご相談ください。 *看板使用料:月額3,300円(税込) |
|---|
アクセス
阪急今津線 / 逆瀬川駅
店舗物件所在地
兵庫県宝塚市逆瀬川1-1-1
交通期間
最寄り駅
阪急今津線 逆瀬川駅 徒歩2分



