賃貸
リリィビル高倉 2階
阪急京都線「烏丸駅」・地下鉄烏丸線「四条駅」近く!高倉通沿い築浅ビル!!飲食店可能な2階店舗♪
適用業種
物件情報
| 物件番号 | 255010008 | 物件種目 | 貸店舗(一部) |
|---|---|---|---|
| 賃料 | 月額 99万円 税込 | 保証金 | 6ヶ月 |
| 礼金 | - | 償却 | スライド方式 |
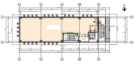
| 建物構造 / 建物階数 | 軽・重量鉄骨造(S造)/ 地上5階 地下 -階 |
使用階 / 部屋番号 | 2階 |
| 面積 | 149.73㎡ | 坪数 | 45.29坪 |
| 築年年月 | 2022年 5月 | 駐車場 | 無 |
| 契約形態 | 定期借家 | 契約期間 | 10年若しくは15年 |
| 現況 | 空 | 引渡し | 即時 |
| 更新料 | なし | 造作譲渡料 | - |
| 特徴 | 天高2.5m以上/スケルトン | ||
| 備考 | *火災保険加入要 *保証会社加入の場合あり *保証金の償却率応相談 *重飲食可 *直接階段あり ※契約期間:定期借家契約10年もしくは15年 お問い合わせは担当:新名(にいな:090-3614-3041)まで! |
|---|
アクセス
阪急京都本線 / 烏丸駅
店舗物件所在地
京都府京都市下京区高材木町217
交通期間
最寄り駅
阪急京都本線 烏丸駅 徒歩1分



