賃貸
ワカイジビック第一ハイツ
大阪メトロ谷町線 出戸駅徒歩5分 ロードサイド飲食店居抜物件 視認性抜群角地
適用業種
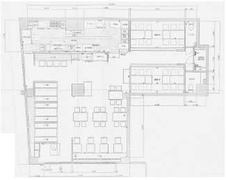
物件情報
| 物件番号 | 255009012 | 物件種目 | 貸店舗(一部) |
|---|---|---|---|
| 賃料 | 月額 28.6万円 税込 | 保証金 | 150万円 |
| 礼金 | - | 償却 | 1,100,000円(税込) |
| 建物構造 / 建物階数 | 鉄筋コンクリート造(RC造)/ 地上10階 地下 -階 |
使用階 / 部屋番号 | 1階/1号室 |
| 面積 | 142.20㎡ | 坪数 | 43.01坪 |
| 築年年月 | 1981年 8月 | 駐車場 | 無 |
| 契約形態 | 普通借家 | 契約期間 | 3年 |
| 現況 | 賃貸中 | 引渡し | 応相談 |
| 更新料 | 造作譲渡料 | - | |
| 特徴 | |||
| 備考 | *保証会社エポス保証加入要、初回100%、月額1% *従前の用途:焼き鳥屋(炭火焼き不可) *造作譲渡費用については、応相談 *退去時はスケルトン返し |
|---|
アクセス
大阪メトロ谷町線 / 出戸駅
店舗物件所在地
大阪府大阪市平野区長吉長原1-8-15
交通期間
最寄り駅
大阪メトロ谷町線 出戸駅 徒歩5分



