賃貸
文京区本郷三丁目ビル(コーポ芙蓉)
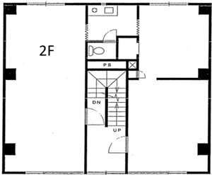
本郷三丁目 2階 店舗利用も相談可能!
適用業種
物件情報
| 物件番号 | 252011011 | 物件種目 | 貸店舗・事務所(一部) |
|---|---|---|---|
| 賃料 | 月額 33万円 税込 | 保証金 | 3ヶ月 |
| 礼金 | - | 償却 | なし |
| 建物構造 / 建物階数 | 鉄筋コンクリート造(RC造)/ 地上5階 地下 -階 |
使用階 / 部屋番号 | 2階 |
| 面積 | 61.96㎡ | 坪数 | 18.74坪 |
| 築年年月 | 1980年 10月 | 駐車場 | 無 |
| 契約形態 | 定期借家 | 契約期間 | 10年 |
| 現況 | 賃貸中 | 引渡し | 相談 |
| 更新料 | 造作譲渡料 | - | |
| 特徴 | |||
| 備考 | *家賃保証会社加入要 *オートロックあり |
|---|
アクセス
東京メトロ丸ノ内線 / 本郷三丁目駅
店舗物件所在地
東京都文京区本郷3-9-9
交通期間
最寄り駅
東京メトロ丸ノ内線 本郷三丁目駅 徒歩6分



