



| 物件番号 | 250811011 | 物件種目 | 貸店舗・事務所(一部) |
|---|---|---|---|
| 賃料 | 月額 44万円 税込 | 保証金 | 4ヶ月 |
| 礼金 | 2.2ヶ月 | 償却 | 解約時保証金の22% |
| 建物構造 / 建物階数 | 軽・重量鉄骨造(S造)/ 地上3階 地下 -階 |
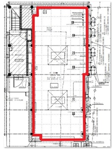
使用階 / 部屋番号 | 1階 |
| 面積 | 70.07㎡ | 坪数 | 21.19坪 |
| 築年年月 | 2026年 2月 | 駐車場 | 無 |
| 契約形態 | 普通借家 | 契約期間 | 3年 |
| 現況 | 建築中 | 引渡し | 2026年3月 |
| 更新料 | 新賃料の1.1ヶ月 | 造作譲渡料 | - |
| 特徴 | |||
| 備考 | 四谷三栄町商店街沿い、新築1階店舗・事務所 保証会社加入要 テナント保険加入要 業種:相談可 |
|---|