賃貸
モモキタ 1階
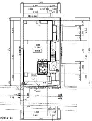
下北沢の新築物件(1階)
適用業種
物件情報
| 物件番号 | 255111003 | 物件種目 | 貸店舗・事務所(一部) |
|---|---|---|---|
| 賃料 | 月額 121.75万円 税込 | 保証金 | - |
| 礼金 | - | 償却 | 解約時保証金の11% |
| 建物構造 / 建物階数 | 鉄筋コンクリート造(RC造)/ 地上6階 地下 -階 |
使用階 / 部屋番号 | 1階 |
| 面積 | 79.54㎡ | 坪数 | 24.06坪 |
| 築年年月 | 2025年 12月 | 駐車場 | 無 |
| 契約形態 | 定期借家 | 契約期間 | 5年 |
| 現況 | 空 | 引渡し | 2025年12月中旬以降 スケルトン |
| 更新料 | 造作譲渡料 | - | |
| 特徴 | 看板設置可/24時間利用可/天高2.5m以上/スケルトン | ||
| 備考 | *要家賃保証、重飲食不可(飲食は軽飲食まで) *期間ご相談可 *天高:3,900mm *電灯30KVA 動力25KVA ガス25A 水道25A 排水10A×1 *排気:一般300㎥/h・厨房900㎥/h |
|---|
アクセス
小田急線 / 下北沢駅
店舗物件所在地
東京都世田谷区北沢2-34-2
交通期間
最寄り駅
小田急線 下北沢駅 徒歩3分



