賃貸
イマス六丁の目北町事務所 1棟
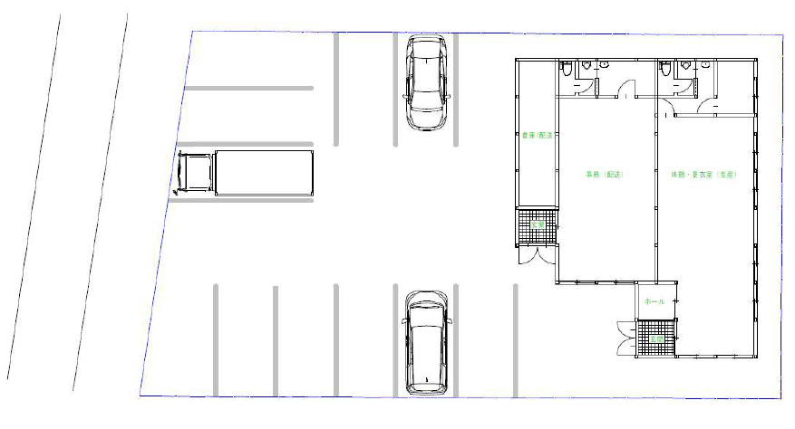
賃貸一括 店舗・事務所 敷地内駐車場10台あり
適用業種
物件情報
| 物件番号 | 252811004 | 物件種目 | 貸店舗・事務所(一括) |
|---|---|---|---|
| 賃料 | 月額 49.50万円 税込 | 保証金 | 8ヶ月 |
| 礼金 | 2ヶ月 | 償却 | - |
| 建物構造 / 建物階数 | 木造(W造)/ 地上1階 地下 -階 |
使用階 / 部屋番号 | 1階 |
| 面積 | 135.80㎡ | 坪数 | 41.07坪 |
| 築年年月 | 1985年 9月 | 駐車場 | 無 |
| 契約形態 | 普通借家 | 契約期間 | 3年 |
| 現況 | 空 | 引渡し | 即時 |
| 更新料 | なし | 造作譲渡料 | - |
| 特徴 | 看板設置可/24時間利用可 | ||
| 備考 | 敷地面積 公簿 490.21m² 敷地内駐車場10台あり |
|---|
アクセス
仙台市営地下鉄東西線 / 荒井駅
店舗物件所在地
宮城県仙台市若林区六丁の目北町16-8
交通期間
最寄り駅
仙台市営地下鉄東西線 荒井駅 徒歩16分
最寄りバス
バス停:六丁の目東町
/ バス停徒歩所要時間:6分



