賃貸
TS52葉山 1階~2階
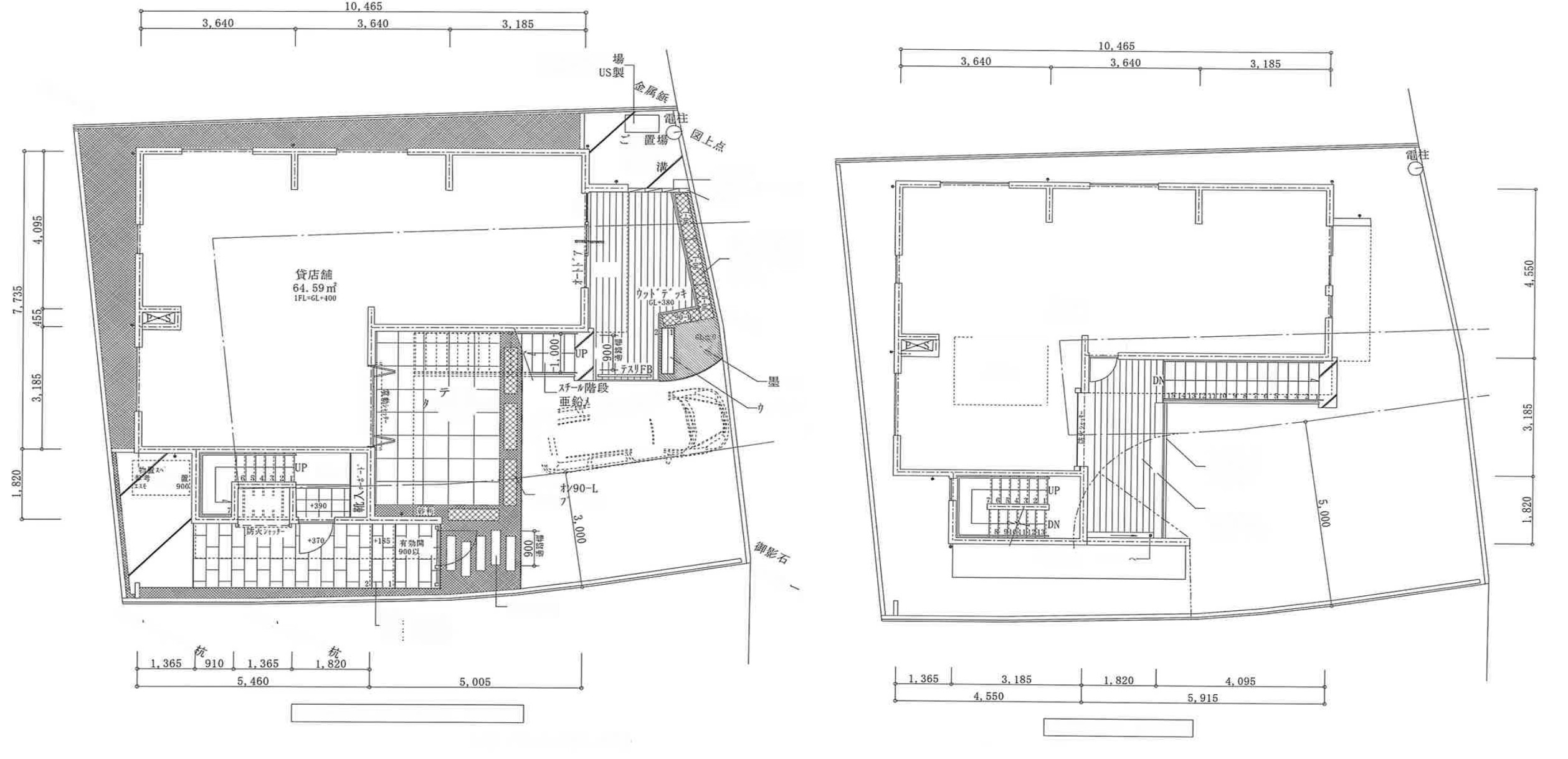
葉山町 新築 バス停目の前 路面 1階重飲食相談可 1,2階一括貸し 諸条件ご相談可
適用業種
物件情報
| 物件番号 | 265102033 | 物件種目 | 貸店舗・事務所(一部) |
|---|---|---|---|
| 賃料 | 月額 52.8万円 税込 | 保証金 | 6ヶ月 |
| 礼金 | 2.2ヶ月 | 償却 | 解約時保証金の22% |
| 建物構造 / 建物階数 | 木造(W造)/ 地上3階 地下 -階 |
使用階 / 部屋番号 | 1階~2階 |
| 面積 | 125.22㎡ | 坪数 | 37.87坪 |
| 築年年月 | 2025年 10月 | 駐車場 | 有 |
| 契約形態 | 普通借家 | 契約期間 | 3年 |
| 現況 | 空 | 引渡し | 即時 |
| 更新料 | 新賃料の1.1ヶ月 | 造作譲渡料 | - |
| 特徴 | 24時間利用可/スケルトン | ||
| 備考 | 弊社指定保証会社加入要 弊社指定火災保険加入要 |
|---|
アクセス
京急逗子線 / 逗子・葉山駅
店舗物件所在地
神奈川県三浦郡葉山町堀内352-3
交通期間
最寄り駅
京急逗子線 逗子・葉山駅 徒歩32分
最寄りバス
バス停:元町
/ バス停徒歩所要時間:1分



