賃貸
インスタイルビル本駒込 1階
2024年3月リファイニング工事完了済! 路面店舗物件 2路線2駅利用可
適用業種
物件情報
| 物件番号 | 265102034 | 物件種目 | 貸店舗・事務所(一部) |
|---|---|---|---|
| 賃料 | 月額 44万円 税込 | 保証金 | 6ヶ月 |
| 礼金 | 2.2ヶ月 | 償却 | 解約時保証金の22% |
| 建物構造 / 建物階数 | 鉄筋コンクリート造(RC造)/ 地上7階 地下1階 |
使用階 / 部屋番号 | 1階 |
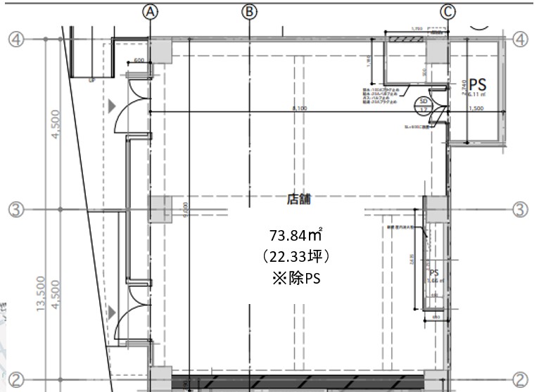
| 面積 | 73.84㎡ | 坪数 | 22.33坪 |
| 築年年月 | 2024年 3月 | 駐車場 | 無 |
| 契約形態 | 普通借家 | 契約期間 | 普通借家3年 |
| 現況 | 賃貸中 | 引渡し | 2026年5月中旬以降 |
| 更新料 | 新賃料の1.1ヶ月 | 造作譲渡料 | - |
| 特徴 | 看板設置可/天高2.5m以上/スケルトン | ||
| 備考 | *保証会社要加入 *火災保険要加入 *軽飲食相談可 (重飲食不可) *電気(電灯・動力有り) *給排水、ガス有り *看板設置スペース有り *前面ガラス張り *天井高3300mm(最大箇所)※除梁下 ◆ご内覧は事前予約調整後にお願い致します。 |
|---|
アクセス
東京メトロ南北線 / 本駒込駅
店舗物件所在地
東京都文京区本駒込4-19-1
交通期間
最寄り駅
東京メトロ南北線 本駒込駅 徒歩11分



