賃貸
JEI広島八丁堀ビル 12階
広島電鉄 「八丁堀駅」より徒歩1分 事務所
適用業種
物件情報
| 物件番号 | 262903003 | 物件種目 | 貸店舗(一部) |
|---|---|---|---|
| 賃料 | 月額 万円 税込 | 保証金 | - |
| 礼金 | - | 償却 | - |
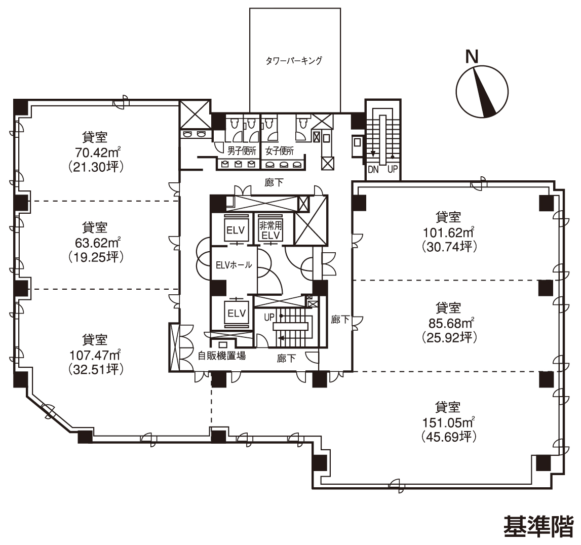
| 建物構造 / 建物階数 | / 地上12階 地下1階 |
使用階 / 部屋番号 | 12階 |
| 面積 | 187.30㎡ | 坪数 | 56.65坪 |
| 築年年月 | 1999年 3月 | 駐車場 | 無 |
| 契約形態 | 普通借家 | 契約期間 | 2年 |
| 現況 | 空 | 引渡し | 即日 |
| 更新料 | 造作譲渡料 | - | |
| 特徴 | 天高2.5m以上 | ||
| 備考 |
|---|
アクセス
広電9号線(白島線) / 八丁堀駅
店舗物件所在地
広島県広島市中区八丁堀14-4
交通期間
最寄り駅
広電9号線(白島線) 八丁堀駅 徒歩1分



