賃貸
KitchenGATE横浜日ノ出町 1階A
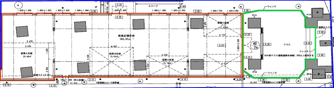
日ノ出町駅徒歩3分!フードコート40席&テラス 初期費用抑えてすぐに始められます!
適用業種
物件情報
| 物件番号 | 260003013 | 物件種目 | 貸店舗(一部) |
|---|---|---|---|
| 賃料 | 月額 24.75万円 税込 | 保証金 | - |
| 礼金 | - | 償却 | 無 |
| 建物構造 / 建物階数 | 軽・重量鉄骨造(S造)/ 地上1階 地下 -階 |
使用階 / 部屋番号 | 1階/A |
| 面積 | 25.48㎡ | 坪数 | 7.70坪 |
| 築年年月 | 2019年 11月 | 駐車場 | 無 |
| 契約形態 | 定期借家 | 契約期間 | 2028年4月まで |
| 現況 | 空 | 引渡し | 即時 |
| 更新料 | 造作譲渡料 | - | |
| 特徴 | |||
| 備考 | 看板・倉庫使用料賃料に含む 厨房設備一式貸与 退去時原状回復費用無し(クリーニング費用のみ) 加盟金50万(税別) 表記賃料は最低賃料(売上により変動) 家賃債務保証加入要 店舗総合保険(借家人賠償特約付)加入要 物件の問い合わせは担当:二階堂(080-5966-2910)までお気軽に |
|---|
アクセス
京急本線 / 日ノ出町駅
店舗物件所在地
神奈川県横浜市中区日の出町1-103-1
交通期間
最寄り駅
京急本線 日ノ出町駅 徒歩3分



