賃貸
仮)新築草加ビル 1階~3階
草加駅から徒歩2分 新築ビル!1階~3階一括貸し 123坪
適用業種
物件情報
| 物件番号 | 265103028 | 物件種目 | 貸店舗・事務所(一括) |
|---|---|---|---|
| 賃料 | 月額 226.6万円 税込 | 保証金 | 10ヶ月 |
| 礼金 | 1ヶ月 | 償却 | 無し |
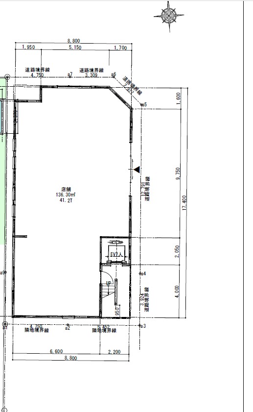
| 建物構造 / 建物階数 | 軽・重量鉄骨造(S造)/ 地上3階 地下 -階 |
使用階 / 部屋番号 | 1階~3階 |
| 面積 | 408.90㎡ | 坪数 | 123.69坪 |
| 築年年月 | 2026年 6月 | 駐車場 | 無 |
| 契約形態 | 定期借家 | 契約期間 | 10年 |
| 現況 | 未完成 | 引渡し | 2026年6月 |
| 更新料 | 造作譲渡料 | - | |
| 特徴 | 看板設置可/24時間利用可/天高2.5m以上/スケルトン | ||
| 備考 | *看板使用料:ご相談 坪単価 1階:20,000円(税別)、2階・3階:15,000円(税別) ※飲食店の場合、坪単価 1階:20,000円(税別)2階・3階 18,000円(税別) *エレベータあり *24時間使用可 |
|---|
アクセス
東武伊勢崎線 / 草加駅
店舗物件所在地
埼玉県草加市氷川町2119-13
交通期間
最寄り駅
東武伊勢崎線 草加駅 徒歩2分



