賃貸
五井高場貸事務所 2階
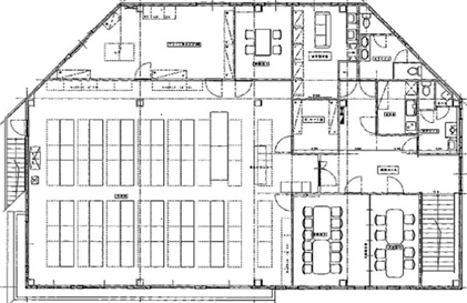
事務所居抜き コンビニ2階 事務所以外の業種ご相談ください
適用業種
物件情報
| 物件番号 | 261704001 | 物件種目 | 貸店舗・事務所(一部) |
|---|---|---|---|
| 賃料 | 月額 27.5万円 税込 | 保証金 | - |
| 礼金 | 1.1ヶ月 | 償却 | なし |
| 建物構造 / 建物階数 | その他/ 地上2階 地下 -階 |
使用階 / 部屋番号 | 2階 |
| 面積 | 320.13㎡ | 坪数 | 96.83坪 |
| 築年年月 | 1999年 4月 | 駐車場 | 有 |
| 契約形態 | 定期借家 | 契約期間 | 10年 |
| 現況 | 賃貸中 | 引渡し | 相談 |
| 更新料 | 造作譲渡料 | - | |
| 特徴 | 看板設置可/天高2.5m以上 | ||
| 備考 | 当社指定保証会社 要加入 火災保険(借家人賠償付き) 要加入 本物件はサブリース契約となります |
|---|
アクセス
JR内房線 / 五井駅
店舗物件所在地
千葉県市原市五井高場5488-1
交通期間
最寄り駅
JR内房線 五井駅 徒歩12分



