賃貸
ステイ・リアル大須 3階
上前津駅3分徒歩、大津通り沿い
適用業種
物件情報
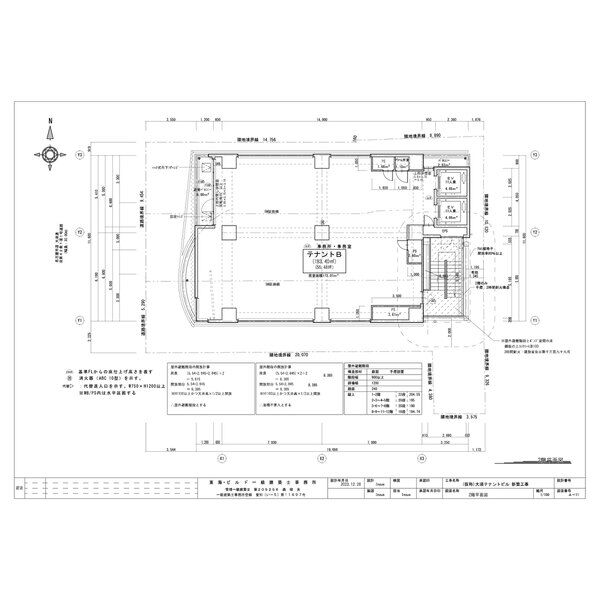
| 物件番号 | 261804005 | 物件種目 | 貸店舗・事務所(一部) |
|---|---|---|---|
| 賃料 | 月額 79.36万円 税込 | 保証金 | 2ヶ月 |
| 礼金 | 1ヶ月 | 償却 | なし |
| 建物構造 / 建物階数 | 鉄筋コンクリート造(RC造)/ 地上12階 地下 -階 |
使用階 / 部屋番号 | 3階 |
| 面積 | 183.40㎡ | 坪数 | 55.47坪 |
| 築年年月 | 2025年 11月 | 駐車場 | 無 |
| 契約形態 | 普通借家 | 契約期間 | 2年 |
| 現況 | 空 | 引渡し | 即日 |
| 更新料 | なし | 造作譲渡料 | - |
| 特徴 | スケルトン | ||
| 備考 | ・町内会費必要 |
|---|
アクセス
名古屋市営地下鉄名城線 / 上前津駅
店舗物件所在地
愛知県名古屋市中区大須4丁目10番86号
交通期間
最寄り駅
名古屋市営地下鉄名城線 上前津駅 徒歩3分



