賃貸
ハエマツ2階建倉庫
\ハエマツ2階建倉庫! 業種応談(建物1・2階 約110坪、敷地 約100坪)駐車スペース有♪/
適用業種
物件情報
| 物件番号 | 260602005 | 物件種目 | 貸店舗・事務所(一括) |
|---|---|---|---|
| 賃料 | 月額 55万円 税込 | 保証金 | - |
| 礼金 | 2ヶ月 | 償却 | 退去時1ヵ月分 |
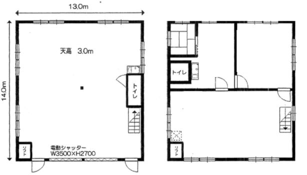
| 建物構造 / 建物階数 | 軽・重量鉄骨造(S造)/ 地上2階 地下 -階 |
使用階 / 部屋番号 | 1階/2階 |
| 面積 | 364.00㎡ | 坪数 | 110.11坪 |
| 築年年月 | 1999年 7月 | 駐車場 | 有 |
| 契約形態 | 定期借家 | 契約期間 | 3年 |
| 現況 | 空 | 引渡し | 即日 |
| 更新料 | 造作譲渡料 | - | |
| 特徴 | 天高2.5m以上 | ||
| 備考 | ■業種応談・飲食可 ■賃貸保証要加入 ■火災保険要加入 ■リフト・キュービクル・電気給湯器・冷暖房設備(残置物) ■短期解約の場合、違約金あり ■工場の場合、第1種住居の為、作業スペースは50㎡以下の制限有 |
|---|
アクセス
JR京浜東北線 / 川口駅
店舗物件所在地
埼玉県川口市榛松2-30-20
交通期間
最寄り駅
JR京浜東北線 川口駅 徒歩0分



