賃貸
歌舞伎町Shinjuku exII 9階
\新宿駅から徒歩3分! 靖国通り沿いの最上階物件♪/
適用業種
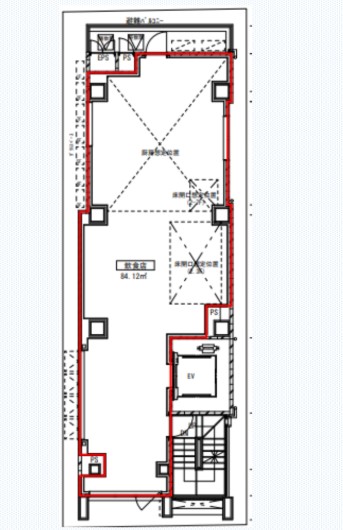
物件情報
| 物件番号 | 260804002 | 物件種目 | 貸店舗(一部) |
|---|---|---|---|
| 賃料 | 月額 118.8万円 税込 | 保証金 | 1000万円 |
| 礼金 | 1ヶ月 | 償却 | 20% |
| 建物構造 / 建物階数 | 鉄骨鉄筋コンクリート造(SRC造)/ 地上8階 地下2階 |
使用階 / 部屋番号 | 9階 |
| 面積 | 84.12㎡ | 坪数 | 25.44坪 |
| 築年年月 | 2021年 2月 | 駐車場 | 無 |
| 契約形態 | 普通借家 | 契約期間 | 3年 |
| 現況 | 空 | 引渡し | 2026年6月15日以降 |
| 更新料 | 新賃料の1.5ヵ月 | 造作譲渡料 | - |
| 特徴 | スケルトン | ||
| 備考 | ■看板使用料:月額17,000円(税込) ■家賃保証会社加入要・火災保険会社加入要 ■NG業種(薬局・香港料理・シーシャバー・アミューズメントカジノバー・ネイルサロン・美容皮膚科・美容内科・一般内科・脱毛クリニック・ガールズバー・キャバクラ) |
|---|
アクセス
JR山手線 / 新宿駅
店舗物件所在地
東京都新宿区歌舞伎町1-16-1
交通期間
最寄り駅
JR山手線 新宿駅 徒歩3分



