賃貸
桜山パックス 2階
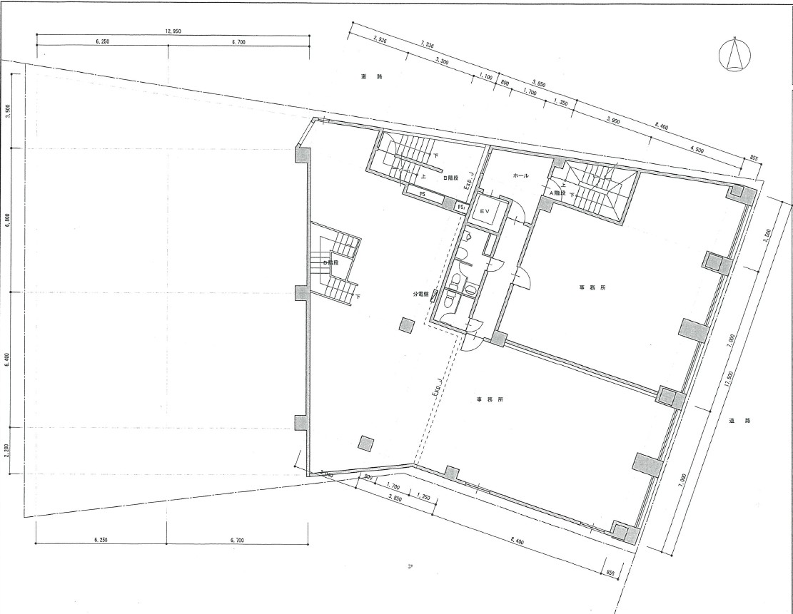
JR総武中央線「東中野駅・徒歩3分」2階 168.80㎡
適用業種
物件情報
| 物件番号 | 260004016 | 物件種目 | 貸店舗(一部) |
|---|---|---|---|
| 賃料 | 月額 49.5万円 税込 | 保証金 | 6ヶ月 |
| 礼金 | 1.1ヶ月 | 償却 | 解約時保証金の22% |
| 建物構造 / 建物階数 | 鉄筋コンクリート造(RC造)/ 地上6階 地下1階 |
使用階 / 部屋番号 | 2階 |
| 面積 | 168.80㎡ | 坪数 | 51.06坪 |
| 築年年月 | 1970年 11月 | 駐車場 | 無 |
| 契約形態 | 定期借家 | 契約期間 | 10年 |
| 現況 | 空 | 引渡し | 相談 |
| 更新料 | 造作譲渡料 | - | |
| 特徴 | 看板設置可/24時間利用可/天高2.5m以上 | ||
| 備考 | 保証会社要 1階87坪+B1階44坪同時に募集中 物件のお問い合わせは担当:長屋(080-3217-2221)までお気軽に |
|---|
アクセス
JR中央・総武線 / 東中野駅
店舗物件所在地
東京都中野区東中野3-9-20
交通期間
最寄り駅
JR中央・総武線 東中野駅 徒歩3分



