賃貸
ルリエ新川崎
駅直結 鹿島田駅:徒歩2分 新川崎駅:徒歩6分
適用業種
物件情報
| 物件番号 | 260004005 | 物件種目 | 貸店舗・事務所(一部) |
|---|---|---|---|
| 賃料 | 月額 54.12万円 税込 | 保証金 | 295.2万円 |
| 礼金 | - | 償却 | なし |
| 建物構造 / 建物階数 | 鉄筋コンクリート造(RC造)/ 地上18階 地下2階 |
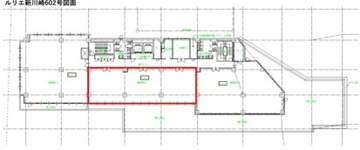
使用階 / 部屋番号 | 6階/602 |
| 面積 | 197.38㎡ | 坪数 | 59.70坪 |
| 築年年月 | 2004年 3月 | 駐車場 | 無 |
| 契約形態 | 普通借家 | 契約期間 | 1年 |
| 現況 | 賃貸中 | 引渡し | 2026年7月1日 |
| 更新料 | 造作譲渡料 | - | |
| 特徴 | |||
| 備考 | ◆鹿島田駅 直結 【ルリエ新川崎】 地域密着 便利な商業施設!! *冷暖房設備あり *出店業態はご相談ください |
|---|
アクセス
JR南武線 / 鹿島田駅
店舗物件所在地
神奈川県川崎市幸区新塚越201
交通期間
最寄り駅
JR南武線 鹿島田駅 徒歩2分



