賃貸
パークアクシス横浜山下町 1階
横浜中華街・横浜公園至近 路面店舗物件 重飲食応相談可
適用業種
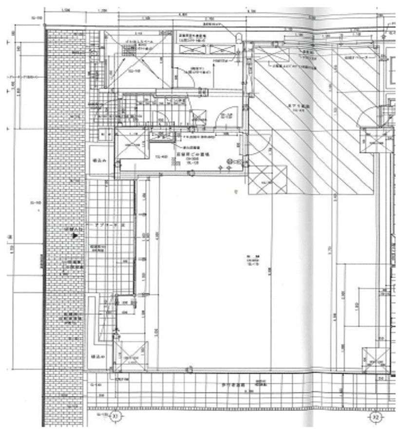
物件情報
| 物件番号 | 265104039 | 物件種目 | 貸店舗(一部) |
|---|---|---|---|
| 賃料 | 月額 78.1万円 税込 | 保証金 | - |
| 礼金 | 1.1ヶ月 | 償却 | - |
| 建物構造 / 建物階数 | 鉄筋コンクリート造(RC造)/ 地上9階 地下 -階 |
使用階 / 部屋番号 | 1階 |
| 面積 | 113.08㎡ | 坪数 | 34.20坪 |
| 築年年月 | 2012年 10月 | 駐車場 | 無 |
| 契約形態 | 普通借家 | 契約期間 | 2年 |
| 現況 | 空 | 引渡し | 即可 スケルトン渡し |
| 更新料 | 造作譲渡料 | - | |
| 特徴 | 看板設置可/天高2.5m以上 | ||
| 備考 | ★貸主指定保証会社要加入 ★火災保険要加入 鍵交換代:16,500円(税込) 口座振替手数料:220円/月 退去時清掃代:211,495円(税込) ◆業種・業態応相談(重飲食店業態により応相談) ◆スケルトン渡し ◆電気(電灯・動力有り)、給排水、ガス有り ◆看板設置スペース有り ◆前面ガラス張り ◆前面道路歩道有り ◆ご内覧は事前予約調整後にお願い致します。 |
|---|
アクセス
JR根岸線 / 石川町駅
店舗物件所在地
山下町210-3
交通期間
最寄り駅
JR根岸線 石川町駅 徒歩6分



