賃貸
用賀4丁目居抜
飲食店居抜
適用業種
物件情報
| 物件番号 | 260804007 | 物件種目 | 貸店舗・事務所(一部) |
|---|---|---|---|
| 賃料 | 月額 143万円 税込 | 保証金 | 6ヶ月 |
| 礼金 | 1.1ヶ月 | 償却 | 解約時30% |
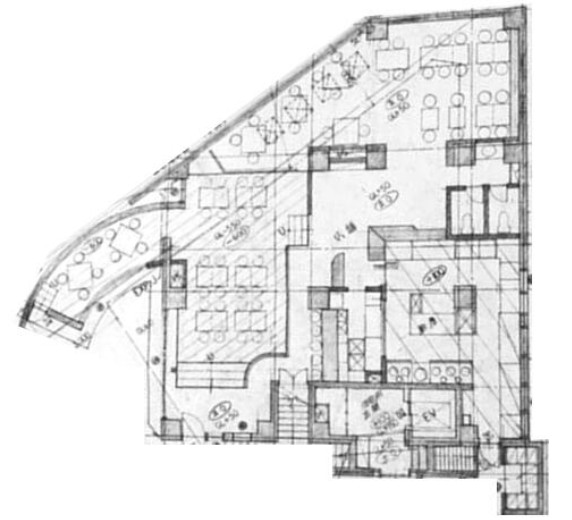
| 建物構造 / 建物階数 | 鉄筋コンクリート造(RC造)/ 地上5階 地下 -階 |
使用階 / 部屋番号 | 1階 |
| 面積 | 212.79㎡ | 坪数 | 64.36坪 |
| 築年年月 | 1998年 6月 | 駐車場 | 無 |
| 契約形態 | 定期借家 | 契約期間 | 5年 |
| 現況 | 空 | 引渡し | 即 |
| 更新料 | 1.1ヶ月 | 造作譲渡料 | - |
| 特徴 | 天高2.5m以上 | ||
| 備考 | 保証会社加入 重飲食不可 物販・サービス店舗・軽飲食・事務所相談可 テーブル・椅子等は撤去予定重飲食不可 |
|---|
アクセス
東急田園都市線 / 用賀駅
店舗物件所在地
東京都世田谷区用賀4-12-5
交通期間
最寄り駅
東急田園都市線 用賀駅 徒歩3分


