賃貸
M’s Building(エムズビルディング) 1階
駅ロータリー前・1階・クリニック・整体等(調剤薬局、内科、歯科入居済み)
適用業種
物件情報
| 物件番号 | 245101012 | 物件種目 | 貸店舗(一部) |
|---|---|---|---|
| 賃料 | 月額 51.45万円 税込 | 保証金 | 6ヶ月 |
| 礼金 | 2.2ヶ月 | 償却 | 解約時保証金の22% |
| 建物構造 / 建物階数 | 軽・重量鉄骨造(S造)/ 地上5階 地下 -階 |
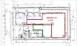
使用階 / 部屋番号 | 1階 |
| 面積 | 85.90㎡ | 坪数 | 25.98坪 |
| 築年年月 | 2021年 9月 | 駐車場 | 無 |
| 契約形態 | 普通借家 | 契約期間 | 3年 |
| 現況 | 空 | 引渡し | 即時 |
| 更新料 | 新賃料の1.1ヶ月 | 造作譲渡料 | - |
| 特徴 | 看板設置可/24時間利用可/天高2.5m以上/スケルトン | ||
| 備考 | ・家賃保証・火災保険加入必須 ・フリーレントご相談ください |
|---|
アクセス
東急田園都市線 / 藤が丘駅
店舗物件所在地
神奈川県横浜市青葉区藤が丘2-4-7
交通期間
最寄り駅
東急田園都市線 藤が丘駅 徒歩1分



