売買
北青山3丁目 1棟ビル
地下鉄「表参道」駅徒歩2分 港区北青山1棟ビル 満室賃貸中
適用業種
物件情報
| 物件番号 | 250809014 | 価格 | 105000万円 |
|---|---|---|---|
| 建物構造/建物階数 | 鉄骨鉄筋コンクリート造(SRC造)/ 地上 -階 地下1階 |
所在階/部屋番号 | |
| 専有面積 | 0.00㎡ | 延床面積 | 335.70㎡ |
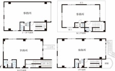
| 間取り | 平面図参照 | 建築年月日 | 2000年 3月 |
| 総戸数 | - | 駐車場 | 無 |
| 現況 | 賃貸中 | 引渡 | |
| 土地面積 | 121.98㎡ | 土地権利 | 所有権 |
| 都市計画 | 市街化区域 | 用途地域 | 第二種住居地域 |
| 備考 | 地下鉄「表参道」駅徒歩2分 現況満室賃貸中(2025年10月2日現在) 飲食・美容・物販にて賃貸中 年間収入:33,477,492円(税込) 利回り:3.18% 検査済証無 エレベーター、駐車場無 現況有姿・売主の契約不適合責任免責 |
|---|
アクセス
東京メトロ銀座線 表参道駅 徒歩2分
店舗物件所在地
東京都港区北青山3丁目




